施設紹介 特別養護老人ホーム サンフレンズ善福寺の施設紹介
サンフレンズ善福寺の周辺環境
サンフレンズ善福寺のすぐ近くには武蔵野三大湧水池ので有名な「善福寺池」を有する「善福寺公園」があります。
善福寺公園は野鳥の聖地としても知られ、湧水からできた池には野鳥やボート浮かび周囲には散策路が整備されています。
善福寺公園の周辺は閑静な住宅街で、高齢者が安心して穏やかに暮らす環境が整っています。

サンフレンズ善福寺の立地

善福寺公園
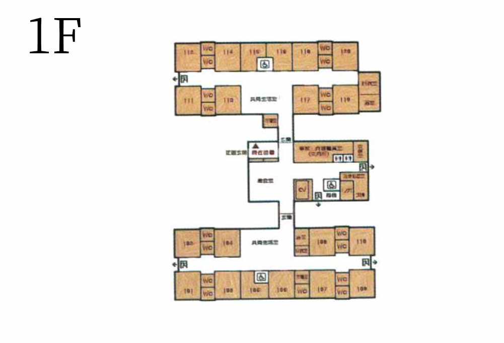
サンフレンズ善福寺の館内図
サンフレンズ善福寺の特徴は全室個室ユニット型のお部屋になっていることです。全ての個室にはトイレが付いており、各フロアに共用のキッチンと食堂も用意されています。
また、寝たきりの方にも移乗用リフト・機械・リフト浴を提供し、看護師が常勤する医務室もございますので高齢者の方に安心して過ごしていただけます。

1階

2階
施設写真
外観

共用トイレ
個室

個室

キッチン付きの食堂

キッチン付きの食堂

浴室

浴室

施設のご見学について
ご見学は、随時受け付けております。あらかじめご希望の日時をご連絡ください。
